Bismillahirrahmanirrahim
- بِسْمِ اللَّهِ الرَّحْمَنِ الرَّحِيم
8 ide inspiratif rumah minimalis 1 lantai 2 kamar tidurDi maklumi rumah 1 lantai maksudnya yaitu rumah dengan 1 lantai bangunan tanpa lantai fungsional lain di atasnya. Rumah 1 lantai begitu terkenal terutama di kawasan pinggiran kota dan pedesaan, hal ini di dorong oleh ketersediaan lahan yang cukup dan keterbatasan sumberdaya dalam membangun rumah 2 lantai, berbeda dengan area perkotaan dimana lahan cukup sulit dan sempit sedang kebutuhan akan ruang hidup relatif sama mengakibatkan membangun rumah 2 lantai atau bahkan lebih seakan menjadi wajib di perkotaan.
Di website ini kami mempunyai 2 buah artikel yang cukup terkenal mengenai rumah 1 lantai ini, yang pertama yaitu artikel berjudul 27 Gambar kerja lengkap rumah modern minimalis 1 lantai dan yang ke dua yaitu 15 ide desain rumah minimalis 1 lantai berbentuk L, untuk artikel yang mengulas rumah rumah dengan 1 lantai ini hingga review ini kami tulis kan telah terdapat 83 bahasan yang menampilkan bermacam-macam gambar acuan dari rumah rumah minimalis 1 lantai, yang kesemuanya itu anda sanggup terusan melalui kategori artikel rumah minimalis 1 lantai.
Selain hanya terdiri dari 1 lantai bangunan, acuan kita kali ini juga merupakan rumah dengan 2 kamar tidur dimana goresan pena ini menjadi goresan pena ke 48 dalam pembahasan rumah rumah denan 2 kamar tidur. Ada lebih dari 4 artikel kami mengenai rumah dengan 2 kamar tidur yang sanggup anda temukan melalui pencarian gambar google dan 1 di antara yang paling terkenal yaitu artikel berjudul 7 sketsa rumah minimalis ukuran 6x12 meter 2 kamar tidur 1 lantai + tampak depan. Sebagaimana artikel rumah minimalis 1 lantai, anda sanggup mengakses lebih banyak acuan rumah 2 kamar tidur melalui kategori artikel rumah minimalis 2 kamar tidur.
Sedikit klarifikasi mengenai bahasan kali ini, merupakan review mengenai 1 desain rumah yang sama dengan 10 gambar 3d visual yang penulisannya kita akan bagi ke dalam 8 sub bahasan yang tentunya akan sangat menarik untuk di simak! berikut ulasannya...
1. Desain rumah minimalis 1 lantai type 45 plus denah
Referensi kita kali ini yaitu rumah dengan luasan teratapi 45 m2 atau biasa juga di sebut dengan rumah type 45. Desain rumah ini di lengkapi dengan sketsa yang akan memudahkan kita memahami seluk beluk bangunan secara utuh dan memungkinkan kita untuk melaksanakan modifikasi ketika hendak mengakibatkan desain rumah ini sebagai dasar dari desain rumah kita nantinya. Denah rumah merupakan hasil dari proses desain yang mempertimbangkan kondisi lahan, kebutuhan ruang penghuni dan prilaku atau aktifitas pengguna, dimana hasil ini di kemas dalam gambar lyout atau penataan ruang secara dua dimensional. Pembahasan mengenai sketsa rumah untuk acuan kita kali ini akan secara lengkap kita bahas pada poin ke tiga nantinya.
akses terus info terbaru dari website ini dengan
GABUNG KOMUNITAS BERBAGI RUMAH MINIMALIS INDONESIA (RUMI) 2020 UNTUK JOIN !!!!
![]() |
| 8 ide inspiratif rumah minimalis 1 lantai 2 kamar tidur |
Mencari informasi arsitektur, di sini saja!!! Gunakan kolom search di kanan atas untuk menemukan informasi yang anda butuhkan, ketikkan kata kunci anda dan klik search. atau gunakan pencarian dengan kategori di kiri kanan website ini, dan atau skrol untuk melanjutkan membaca artikel. Selamat berselancar =)
2. Desain rumah minimalis 1 lantai 2 kamar tidur
Sebelumnya pada muqadimah kita di atas, kami telah banyak menyinggung mengenai rumah 1 lantai dan rumah dengan 2 kamar tidur, masuk akal saja alasannya yaitu topik bahasan kita kali ini memang mengenai rumah dengan kriteria ke dua hal tersebut yaitu rumah minimalis 1 lantai dengan 2 kamar tidur. Pembahasan ini menjadi menarik alasannya yaitu rumah rumah 1 lantai dengan 2 kamar tidur merupakan desain dari rumah rumah yang paling banyak di cari! bukan tanpa alasan besarnya jumlah komunitas keluarga muda, tingginya ke inginan mempunyai rumah sendiri, serta budget yang terbatas mengakibatkan jenis rumah ini yaitu tipikal desain rumah yang paling diminati.
![]() |
| 8 ide inspiratif rumah minimalis 1 lantai 2 kamar tidur |
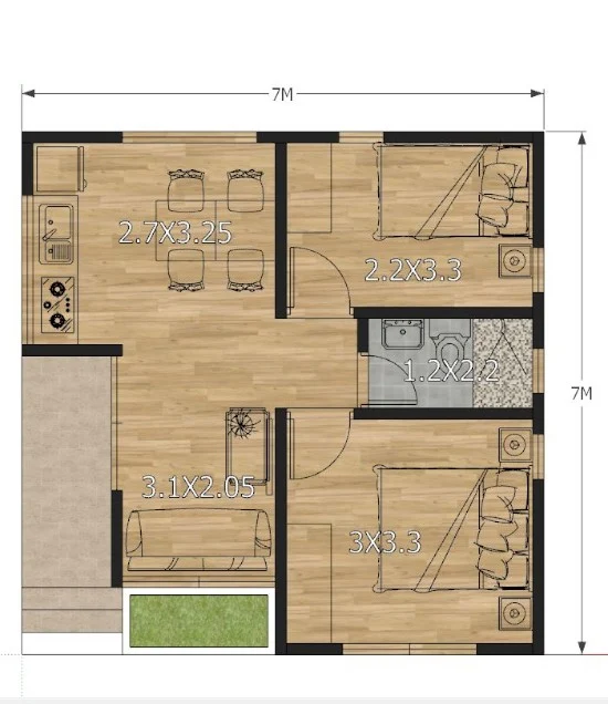
3. Denah rumah minimalis 2 kamar tidur 1 lantai ukuran 7x7 meter
Ukuran rumah pada acuan kita kali ini relatif kotak dengan lebar 7 meter dan panjang 7 meter, atau setara 49 m2, namun yang menjadi area fungsional rumah hanya sekitar 43 hingga 45 m2 saja. Denah rumah di mulai dengan tangga kecil di kiri bangunan yang akan mengantarkan kita pada satu satunya teras di rumah ini yang berukuran 1x4 meter. Dari teras ini kita akan memasuki area ruang tamu dengan pintu menghadap ke sisi kiri bangunan, ruang tamu berukuran standar 2x3 meter dengan 1 sofa dan 1 meja tamu. Di depan ruang tamu atau di belahan sudut kiri belakang bangunan terdapat ruang makan yang juga terkoneksi eksklusif dengan dapurnya berukuran 2.7x3 meter. 2 kamar dan satu kamar mandi berderet di sisi kanan bangunan dengan ukuran masing masing 3x3.3 meter untuk kamar utama, 1.2x2.2 meter untuk kamar mandi dan 2.2x3.3 meter untuk kamar anak.
![]() |
| 8 ide inspiratif rumah minimalis 1 lantai 2 kamar tidur |
4. Tampak depan rumah minimalis 1 lantai dengan lebar 7 meter
Penampilan tampak depan rumah ini berdesain simple dan minimalis dengan tipologi bentuk yang sederhana, dari sisi bentuk bangunan secara umum, memang untuk bangunan kecil ibarat ini kita tidak punya banyak pilihan, sehingga untuk mendapat kesan estetis sang arsitek biasanya bermain dengan detail dan profil dinding. Yang istimewa dari desain kita kali ini yaitu tampilan bangunan sangat solid dan kokoh terlihat bersamaan dengan itu tampilan sederhana juga terjaga, aksen tanaman di belahan depan tengah bangunan menyempurnakan kesan nyaman dari desain fasade rumah ini! Untuk pewarnaan, rumah ini sendiri memakai kombinasi warna cat rumah turunan krem dan warna putih sebagai warna list, profil dan kusennya.
![]() |
| 8 ide inspiratif rumah minimalis 1 lantai 2 kamar tidur |
5. Desain rumah minimalis 2 kamar tidur dengan budget 100 jutaan
Yah dengan luasan yang 49 m2 persegi maka bangunan ini mempunyai bajet 100 jutaan paling istimewa kalau di kalikan dengan biaya permeter 3 juta rupiah maka total biaya bangunan masih kurang dari 150 juta rupiah. Penjelasan mengenai hal ini panjang lebar kami jelaskan pada muqadimah artikel kami yang berjudul 5 ide inspiratif rumah mungil minimalis budget 100 jutaan. Di sana kami menjelaskan beberapa faktor utama yang mempengaruhi biaya membangun dan di antara yang kami sebutkan yaitu luas total bangunan teratapi, dimana semakin luas bangunan maka akan semakin besar pula biaya yang di gunakan untuk membangun rumah tersebut. Oh iya, artikel kami mengenai rumah mungil budget 100 jutaan di atas merupakan salah satu artikel kami yang sangat viral beberapa hari ini dan sangat sayang kalau anda tidak membacanya!!!
![]() |
| 8 ide inspiratif rumah minimalis 1 lantai 2 kamar tidur |
6. Desain rumah 1 lantai sederhana tapi mewah
Dengan membaca klarifikasi penjelasan kita sebelumnya saya yakin bahwa ketika ini anda akan oke dengan judul kita di poin 6 ini, bahwa rumah ini yaitu rumah minimalis 1 lantai yang sangat sederhana namun berpenampakan mewah. Hari ini di artikel ini saya akan beri diam-diam kesan glamor atau trik dalam membangun bangunan semoga meskipun berdesain sederhana tetapi sanggup terlihat mewah! Dan rahasianya kembali kepada tiga hal yaitu, yang pertama pengerjaan desain yang rapih bersih, yang kedua penggunaan cat yang berkualitas dan yang ketiga atau yang terakhir yaitu permainan dengan aksen cahaya di beberapa sudut bangunan, mengaplikasikan 3 hal ini secara sempurna sanggup di pastikan akan menghasilkan penampilan bangunan yang wah!!!
![]() |
| 8 ide inspiratif rumah minimalis 1 lantai 2 kamar tidur |
![]() |
| 8 ide inspiratif rumah minimalis 1 lantai 2 kamar tidur |
7. Desain rumah minimalis 2 kamar tidur dengan atap miring
Referensi kita kali ini merupakan rumah 2 kamar tidur dengan bentuk bangunan memakai atap miring. Atap miring di maklumi sanggup tampil atau bertransformasi ke dalam beberapa bentuk aplikasi, sanggup dengan miring ke depan, atap miring kesamping, kesamping kanan maupun ke samping kiri, atap miring ke belakang atau kombinasi dari beberapa model kemiringan. Di awal tahun 2020 ini salah satu artikel kami yang paling terkenal menampilkan kombinasi atap miring yaitu artikel kami berjudul 18 desain inspiratif rumah minimalis modern atap miring.
Nah untuk acuan rumah kita di pembahasan ini memakai atap miring dengan arah kemiringan ke belakang bangunan, itu artinya jatuhan air hujan dari atap semuanya akan di buang ke belahan belakang bangunan, dimana kondisi ini mengkriteriakan bangunan harus mempunyai kelebihan tanah minimal 1 meter di belahan belakang bangunan, secara teknis hal ini juga sanggup berarti rumah dengan atap ini harus benar benar memperhatikan drainase bangunan yang menyalurkan air dari belakang ke depan bangunan yaitu ke riol utama perumahan.
![]() |
| 8 ide inspiratif rumah minimalis 1 lantai 2 kamar tidur |
8. Desain interior rumah mungil minimalis 1 lantai
Di pembahasan terakhir, tampaknya kurang afdol kalau kita tidak membahas mengenai interior rumah pada acuan kali ini, mumpung datanya juga tersedia. Isu paling utama pada rumah kecil memang salah satunya yaitu mengenai penataan perabotnya, di maklumi ketika kita mempunyai rumah kecil itu artinya kita harus berkongsi dengan penggunaan furniture yang seminimal mungkin, penempatan perabot yang seefektif mungkin dan penataan ruang yang tidak membebani sirkulasi ruang. Tujuannya sangat filosofis tentu saja, rumah merupakan tempat untuk beristirahat dari penat lelah kerja seharian, tentu saja kita tidak ingin tempat kita bernaung ini justru menambah stres kita alasannya yaitu penataan yang tidak tepat. Gambar kita pertama di bawah di ambil dari arah kitchen set ke arah ruang tamu dan gambar kita ke dua di ambil dari arah sebaliknya yaitu dari area di depan pintu kamar ke arah kitchen set!
![]() |
| 8 ide inspiratif rumah minimalis 1 lantai 2 kamar tidur |
![]() |
| 8 ide inspiratif rumah minimalis 1 lantai 2 kamar tidur |
LIHAT SEMUA KATEGORI ARTIKEL DI SINI
Model rumah minimalis 2020
jasa arsitek dan kontraktor Makassar Hubungi WA:081241644892
untuk aneka macam teladan desain lainnya:












